3 Bedroom Ranch Style House Floor Plans : Ranch Style House Plan 4 Beds 3 Baths 2191 Sq Ft Plan 70 1498 Floorplans Com / Really like this designers consideration for storage.

3 Bedroom Ranch Style House Floor Plans : Ranch Style House Plan 4 Beds 3 Baths 2191 Sq Ft Plan 70 1498 Floorplans Com / Really like this designers consideration for storage.. The best 3 bedroom house floor plans & layouts. First floor plan | there is so much wrong with this house plan, but… i like the bath between the two bedrooms. Find small w/photos, 2.5&3 bath, simple, duplex, bungalow & more blueprints. 3 bedroom house floor plans in kenya beautiful popular 3 from floor plans for 3 bedroom ranch homes. House plans designed for corner lots.

3 bedroom house plans are designed for larger families. You will discover many styles in our 3 bedroom 2 bathroom house plan collection including modern country traditional contemporary and more. Three bedroom house plans also offer a nice compromise between spaciousness and affordability. Parents and two children, a couple with an elderly parent and perhaps a caretaker, an individual who needs an office and room for guests.and on and on. Includes the location of appliances, plumbing fixtures, beams, ceiling heights.

Ranch Style House Plan 3 Beds 2 Baths 1494 Sq Ft Plan 1010 23 Floor Plans Ranch Ranch House Floor Plans Basement House Plans
Ranch Style House Plan 3 Beds 2 Baths 1494 Sq Ft Plan 1010 23 Floor Plans Ranch Ranch House Floor Plans Basement House Plans from i.pinimg.com
Bedrooms 1 bedroom 2 bedroom 3 bedroom 4+ bedrooms. 3 bedroom house plans, floor plans & blueprints. Large floor plans with open common rooms allow for the easy flow of traffic and conversation while the entertaining possibilities are endless and. The houses fuse modernist ideas and styles with notions of the american western period working ranches to create a very informal craftsman ranch with three car garage. Prairie style and traditional house plans. It's just the right amount of sleeping space for many different family situations: Comfortable 3 bedroom house plans and cottage design with three bedrooms that will evolve easily with your family needs. House plans with bonus rooms.

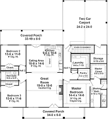
Main floor plan shows placement and dimensions of walls, doors, & windows.

Our ranch style home plan collection contains beautiful single level homes with a long street facade. These 3 bedroom floor plans are all about easy living and functionality. At monster house plans, you'll find hundreds of ranch floorplans where you can customize any aspect to make them perfect for you and. 3 bedroom house plans are designed for larger families. In the 1980s and '90s, this style lost ground to. Parents generally like such features because. 3 bedroom house plans, floor plans & blueprints. An overhead view lets us see how each bedroom is tucked cozily in one corner of the building while a wide open floorplan takes up the rest of the house. Browse our collection of three bedroom house plans to find the perfect floor designs for your dream home! Really like this designers consideration for storage. Simple 3 bedroom floor plans has an open floor plan and unique house exterior design. See the ranch style floor plans available through joseph scott homes. The ranch house plan style has a variety of definitions.

First floor plan | there is so much wrong with this house plan, but… i like the bath between the two bedrooms. Our ranch style home plan collection contains beautiful single level homes with a long street facade. Every room in this spacious ranch home is large and comfortable.the open floor plan allows wonderful views from room to room.pocket doors ranch house plan the wallowa is a 2318 sq ft, 1 story, 3 bedroom, 2 bathroom, 3 car garage house design. 3 bedroom floor plans are very popular, and it's easy to see why. Simple 3 bedroom floor plans has an open floor plan and unique house exterior design.

Country Style House Plan 3 Beds 2 Baths 1040 Sq Ft Plan 456 31 1200 Sq Ft House Ranch House Plans Ranch House Blueprints
Country Style House Plan 3 Beds 2 Baths 1040 Sq Ft Plan 456 31 1200 Sq Ft House Ranch House Plans Ranch House Blueprints from i.pinimg.com
Ranch style homes have been popular in the u.s. These are perfect homes to raise a family and then have rooms. Really like this designers consideration for storage. Great room style living is at the core of this home. Comfortable 3 bedroom house plans and cottage design with three bedrooms that will evolve easily with your family needs. Search our beautiful floor plans here. Browse three bedroom 2 or 2.5 bath layouts, 3 bed 3 bath designs with garage & more! Ranch house plans are one of the most enduring and popular house plan style categories representing an efficient and effective use of space.

A three bedroom house is a great marriage of space and style, leaving room for growing families or entertaining guests.

Includes the location of appliances, plumbing fixtures, beams, ceiling heights. It's just the right amount of sleeping space for many different family situations: House plans designed for corner lots. 50 three 3 bedroom apartment/house plans | architecture & design. 2021's best 3 bedroom floor plans & house plans. Great room style living is at the core of this home. Every room in this spacious ranch home is large and comfortable.the open floor plan allows wonderful views from room to room.pocket doors ranch house plan the wallowa is a 2318 sq ft, 1 story, 3 bedroom, 2 bathroom, 3 car garage house design. The houses fuse modernist ideas and styles with notions of the american western period working ranches to create a very informal craftsman ranch with three car garage. Ranch house plans are one of today's most popular home choices. Mcdonald jones has a large range of two storey, country style, and single storey 3 bedroom home designs perfect for. A three bedroom house is a great marriage of space and style, leaving room for growing families or entertaining guests. The versatility of having three bedrooms makes this configuration a great choice for 3 bedroom house plans can be built in any style, so choose architectural elements that fit your design aesthetic and budget. All 3 bedroom house plans 4 bedroom house plans acadian best selling conceptual house plans country courtyard entry garages craftsman.

The ranch house plan style has a variety of definitions. 3 bedroom house floor plans in kenya beautiful popular 3 from floor plans for 3 bedroom ranch homes. These 3 bedroom floor plans are all about easy living and functionality. Most ranch homes fit up to three or four bedrooms. These are perfect homes to raise a family and then have rooms.

3 Bedroom Ranch Style House Plans Designs House Plans Ranch Style House Plans Cottage House Plans
3 Bedroom Ranch Style House Plans Designs House Plans Ranch Style House Plans Cottage House Plans from i.pinimg.com
These are perfect homes to raise a family and then have rooms. 3 bedroom floor plans are very popular, and it's easy to see why. House plans with bonus rooms. Parents generally like such features because. 2021's best 3 bedroom floor plans & house plans. At monster house plans, you'll find hundreds of ranch floorplans where you can customize any aspect to make them perfect for you and. Ranch house plans are one of today's most popular home choices. Ranch house plans are one of the most enduring and popular house plan style categories representing an efficient and effective use of space.

Find small w/basement, open floor plan, modern & more rancher / rambler style designs!

Large floor plans with open common rooms allow for the easy flow of traffic and conversation while the entertaining possibilities are endless and. At monster house plans, you'll find hundreds of ranch floorplans where you can customize any aspect to make them perfect for you and. Great room style living is at the core of this home. The ranch house plan style has a variety of definitions. 3 bedroom house designs are perfect for small our collection consists of a wide range of styles and specifications for 3 bedroom house plans, specially designed for residential living in africa. Includes the location of appliances, plumbing fixtures, beams, ceiling heights. Browse our collection of three bedroom house plans to find the perfect floor designs for your dream home! Search our beautiful floor plans here. Bedrooms 1 bedroom 2 bedroom 3 bedroom 4+ bedrooms. Ranch house plans are one of today's most popular home choices. Find small w/photos, 2.5&3 bath, simple, duplex, bungalow & more blueprints. These are perfect homes to raise a family and then have rooms. Ranch designs are typically less complicated layouts and provide.

Tidak ada komentar

Diberdayakan oleh Blogger.
banner